Ekskluzywne mieszkanie trzypokojowe na całym piętrze w dzielnicy Zornitsa – przestrzeń, prywatność i nowoczesny design

 Зорница, Zornitsa 3

258 808 €

324м2800 €/м2

3 Pokoje , 2 Sypialnie 1 Balkon, 2 Łazienki
Wybudowany 2027
nieumeblowane
5 Od 5
2 km
Informacja o nieruchomości
  • ID:38512
  • Miasto: Burgas
  • Kompleks:Zornitsa 3
  • Wybudowany:2027
  • Umeblowane:Nieumeblowane
  • Odległość od morza:2 km
  • Widok:Miasto
  • Sezonowość:Całoroczne
  • Piętro:5 Od 5
  • Konstrukcja:Cegła
  • Ogrzewanie:Prąd
  • Ochrona:Nie
  • Winda:Tak
Opis

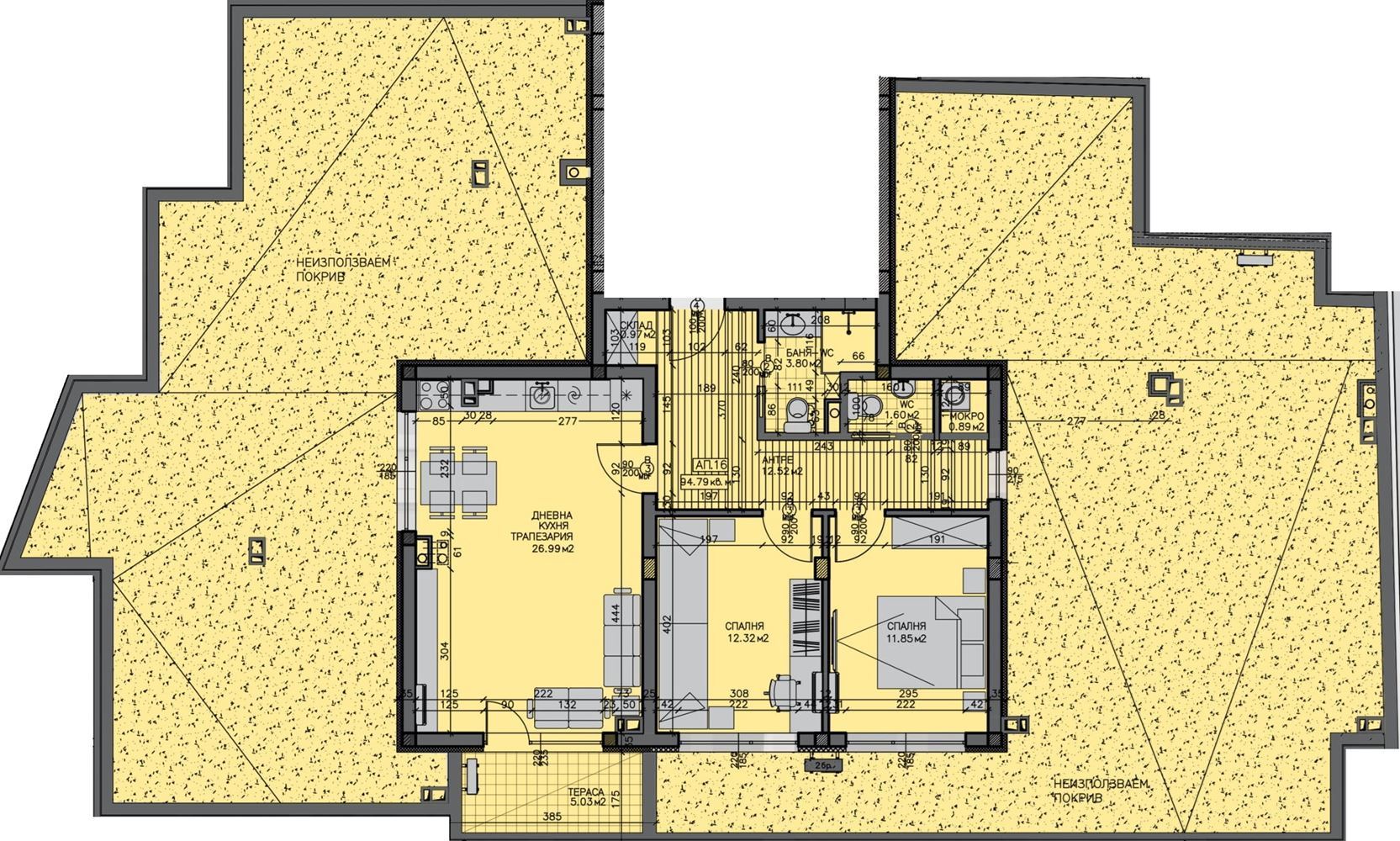
Prezentujemy przestronne mieszkanie trzypokojowe o imponującej powierzchni 323.51 m², położone na piątym piętrze nowego budynku o eleganckiej architekturze, wysokiej jakości wykonania i dbałości o każdy detal. Na tym piętrze znajduje się tylko to mieszkanie, co zapewnia pełną prywatność, spokój i komfort – rzadkie zalety w środowisku miejskim.

Mieszkanie jest zachodnio wychodzące, co zapewnia przyjemne naturalne światło po południu i przytulną atmosferę wieczorem. Składa się z przedpokoju, przestronnego salonu z kuchnią, dwóch sypialni, łazienki z toaletą, oddzielnej toalety, pralni, schowka i balkonu, a układ został zaprojektowany z myślą o maksymalnej funkcjonalności i wygodzie. Duża powierzchnia oferuje doskonałe możliwości stworzenia stylowego i komfortowego domu, dopasowanego do indywidualnych preferencji przyszłych właścicieli.

Nieruchomość znajduje się w jednej z najbardziej zielonych i pożądanych części Burgas – w dzielnicy Zornitsa, która oferuje idealną równowagę między spokojem, nowoczesną infrastrukturą a bliskością morza. Lokalizacja zapewnia szybki i wygodny dostęp do centrum miasta, szkół, parków, placówek medycznych oraz wielu udogodnień dla aktywnego i komfortowego stylu życia.

Budynek jest obecnie w budowie, planowane zakończenie – 2027 rok. Mieszkanie będzie wydane według standardów bułgarskich („BDS”), w stanie deweloperskim, co pozwala na indywidualne wykończenie i aranżację wnętrza zgodnie z gustem nowego właściciela. Przewidziana jest również możliwość zakupu miejsca parkingowego lub garażu, zapewniająca dodatkowy komfort i bezpieczeństwo.

Nieruchomość stanowi wyjątkową okazję do zakupu przestronnego i prestiżowego mieszkania w ustabilizowanej części Burgas. Łącząc całe piętro, nowoczesną architekturę, strategiczną lokalizację i wysoki potencjał inwestycyjny, mieszkanie jest doskonałym wyborem zarówno na luksusowy dom rodzinny, jak i inwestycję o długoterminowej wartości.

Lokalizacja na mapie