Nowe mieszkanie dwupokojowe w Ravda – elastyczne warunki płatności i doskonała lokalizacja

 Rawda, La Mer House

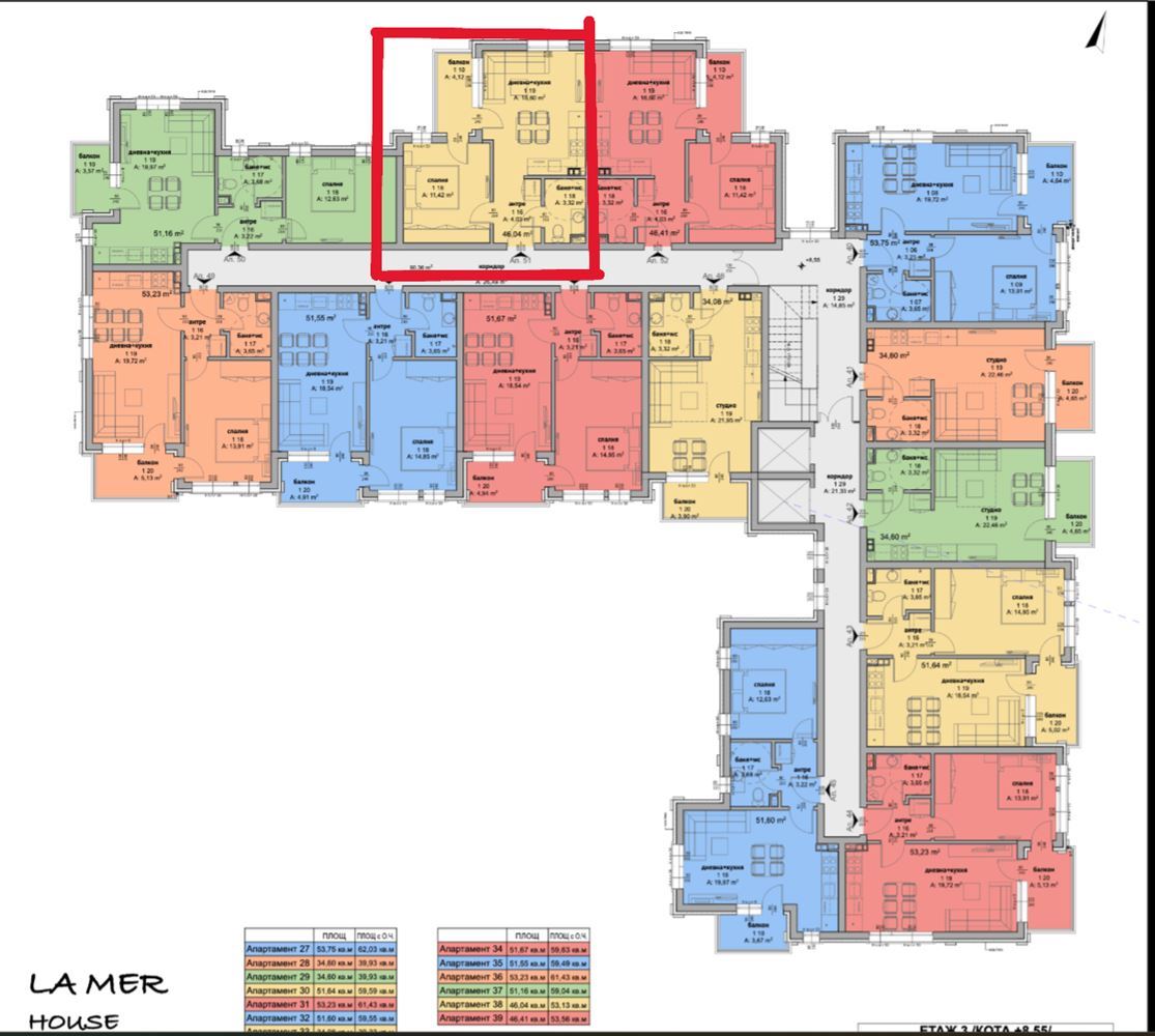
76 900 €

53м21447 €/м2

2 Pokoje , 1 Sypialnia 1 Balkon, 1 Łazienka
Wybudowany 2027
nieumeblowane
4 Od 5
500 m
Informacja o nieruchomości
  • ID:38754
  • Miasto: Rawda
  • Kompleks:La Mer House
  • Wybudowany:2027
  • Umeblowane:Nieumeblowane
  • Odległość od morza:500 m
  • Widok:Miasto
  • Sezonowość:Całoroczne
  • Piętro:4 Od 5
  • Konstrukcja:Cegła
  • Ogrzewanie:Prąd
  • Ochrona:Nie
  • Winda:Tak
Opis

Oferujemy nowoczesne mieszkanie dwupokojowe o powierzchni 53,13 m², położone na czwartym piętrze w nowym, ekskluzywnym kompleksie mieszkaniowym w Ravdzie. Nieruchomość łączy nowoczesną architekturę, wysoką jakość wykonania i funkcjonalny układ, co czyni ją idealnym wyborem zarówno do zamieszkania, jak i inwestycji.

Mieszkanie oferowane jest w standardzie „pod klucz”, co pozwala zaoszczędzić czas, wysiłek i dodatkowe koszty. Przestrzeń została zaprojektowana tak, aby zapewnić maksymalny komfort i dużo naturalnego światła, tworząc przytulną atmosferę do życia. Nadaje się zarówno do całorocznego zamieszkania, jak i jako apartament wakacyjny nad morzem.

Kompleks znajduje się w cichej i malowniczej okolicy, zaledwie około 500 metrów od plaży, a jednocześnie blisko sklepów, supermarketów, restauracji i przystanków komunikacji miejskiej. Zapewnia to wygodę na co dzień i łatwy dostęp do wszystkich usług.

Do dyspozycji właścicieli są winda, parking, zadbane części wspólne, plac zabaw oraz miejsce do grillowania, które podnoszą komfort życia. Budynek powstaje z wysokiej jakości materiałów, gwarantujących trwałość, niezawodność i nowoczesny wygląd.

Dużym atutem jest możliwość płatności ratalnej do 2027 roku, co czyni ofertę wyjątkowo atrakcyjną i dostępną.

To mieszkanie to idealna propozycja na bezpieczną inwestycję lub przytulny dom nad morzem, łączący spokój, wygodę i nowoczesny styl życia.

Skontaktuj się z nami, aby uzyskać więcej informacji i wybrać swoją nową nieruchomość w Ravdzie już dziś!

Brak opłaty eksploatacyjnej!

Lokalizacja na mapie