Nowoczesne dwupokojowe mieszkanie nad morzem w Pomorie – nowy budynek, brak opłat eksploatacyjnych

 Pomorie, Tuthon

84 093 €

67м21250 €/м2

2 Pokoje , 1 Sypialnia 1 Balkon, 1 Łazienka
Wybudowany 2028
nieumeblowane
1 Od 5
200 m
Informacja o nieruchomości
  • ID:37760
  • Miasto: Pomorie
  • Kompleks:Tuthon
  • Wybudowany:2028
  • Umeblowane:Nieumeblowane
  • Odległość od morza:200 m
  • Widok:Miasto
  • Sezonowość:Całoroczne
  • Piętro:1 Od 5
  • Konstrukcja:Cegła
  • Ogrzewanie:Prąd
  • Ochrona:Nie
  • Winda:Tak
Opis


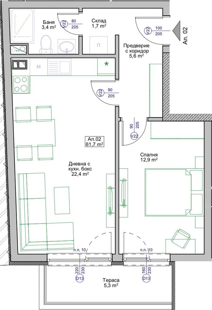
Prezentujemy nowoczesne dwupokojowe mieszkanie w nowym projekcie, położone w jednej z najbardziej pożądanych dzielnic Pomorie – zaledwie kilka minut od plaży i centrum miasta. Mieszkanie ma 67,27 m², znajduje się na drugim piętrze budynku mieszkalnego z windą i oferowane jest bez opłat eksploatacyjnych – rzadko spotykana zaleta nieruchomości nad morzem. Rozpoczęcie budowy planowane jest na październik 2025 r., zakończenie i odbiór techniczny (Act 16) – październik 2027 r.

Lokalizacja łączy spokój z doskonałą infrastrukturą miejską. W pobliżu znajdują się słynne kąpiele błotne, centra medyczne, plaża, stadion piłkarski oraz centrum Pomorie, a także liczne sklepy, restauracje i usługi, zapewniające komfortowe całoroczne życie.

Mieszkanie wyróżnia się funkcjonalnym i wygodnym układem: hol/wiatrołap, przestronny salon z aneksem kuchennym, osobna sypialnia, łazienka z WC, pomieszczenie gospodarcze oraz jeden taras – idealne miejsce na poranną kawę lub wieczorny relaks. Kompaktowy i logiczny układ zapewnia poczucie przestrzeni i łatwą organizację wnętrza. Mieszkanie zostanie oddane zgodnie z bułgarskimi standardami budowlanymi (BDS), z dbałością o szczegóły i wysoką jakość materiałów, co pozwoli nowym właścicielom wdrożyć własną koncepcję aranżacji i wyposażenia. Budynek charakteryzuje się nowoczesną architekturą, reprezentacyjnymi częściami wspólnymi i windą dla codziennej wygody.

Nieruchomość jest doskonałym wyborem zarówno do stałego zamieszkania nad morzem, jako dom wakacyjny, jak i inwestycja z potencjałem wynajmu w sezonie. Skontaktuj się z nami w celu uzyskania szczegółowych informacji, planów mieszkania i pomocy przy oględzinach. Przekażemy pełne informacje o projekcie, harmonogramie i procesie zakupu.

Lokalizacja na mapie