Panoramiczne dwupokojowe mieszkanie z ogromnym tarasem w Pomorie – nowa inwestycja, brak opłat eksploatacyjnych

 Pomorie, Tuthon

103 113 €

129м2800 €/м2

2 Pokoje , 1 Sypialnia 1 Balkon, 1 Łazienka
Wybudowany 2027
nieumeblowane
5 Od 5
200 m
Informacja o nieruchomości
  • ID:37771
  • Miasto: Pomorie
  • Kompleks:Tuthon
  • Wybudowany:2027
  • Umeblowane:Nieumeblowane
  • Odległość od morza:200 m
  • Widok:Miasto
  • Sezonowość:Całoroczne
  • Piętro:5 Od 5
  • Konstrukcja:Cegła
  • Ogrzewanie:Prąd
  • Ochrona:Nie
  • Winda:Tak
Opis


Zostań częścią nowoczesnej przestrzeni mieszkalnej w pięknym nadmorskim mieście Pomorie! Prezentujemy przestronne dwupokojowe mieszkanie z imponującym tarasem i panoramicznym widokiem na miasto i okolicę. Nieruchomość położona jest w spokojnej i dobrze rozwiniętej dzielnicy – zaledwie kilka minut od leczniczych kąpieli błotnych, centrów medycznych, plaży, stadionu piłkarskiego i centrum miasta. Lokalizacja łączy codzienny komfort z długoterminową wartością.

Budowa budynku mieszkalnego prowadzona jest według nowoczesnych standardów, z dbałością o szczegóły i jakość materiałów. Projekt obejmuje parter i pięć kondygnacji mieszkalnych z windą; parter przeznaczony jest całkowicie na garaże i miejsca parkingowe. Budynek nie ma opłat eksploatacyjnych – doskonała wiadomość dla przyszłych właścicieli i inwestorów. Dostępne są elastyczne plany płatności i możliwość zakupu „na zielono”, zakończenie planowane na 2027 rok.

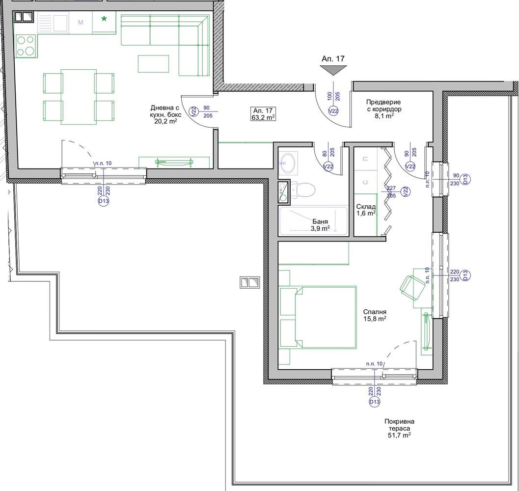
Mieszkanie ma powierzchnię 128,89 m² i funkcjonalny układ: przestronny salon z aneksem kuchennym i bezpośrednim wyjściem na ogromny taras, osobna sypialnia z wyjściem na taras, łazienka z WC, pomieszczenie gospodarcze oraz wygodny przedpokój. Mieszkanie sprzedawane jest w stanie deweloperskim, co daje swobodę wykończenia według własnych upodobań i standardów. Budynek wyposażony jest w windę, a przewidziane garaże i miejsca parkingowe zapewniają komfortowe parkowanie.

Nieruchomość doskonale nadaje się zarówno na stałe zamieszkanie, jak i jako dom wakacyjny. Dzięki bliskości plaży i ośrodków leczniczych, jest również idealna jako inwestycja z potencjałem dochodu z wynajmu krótkoterminowego lub długoterminowego. Nie przegap okazji, aby stać się właścicielem panoramicznego, niezwykle przestronnego dwupokojowego mieszkania w jednym z najbardziej poszukiwanych kurortów na południowym wybrzeżu Morza Czarnego. Skontaktuj się z nami w sprawie planów, dodatkowych informacji, konsultacji dotyczącej dochodów i oględzin na miejscu.

Lokalizacja na mapie