Przestronne dwupokojowe mieszkanie w nowym kompleksie w budowie w Aheloy

 Aheloy, Château Aheloy park

98 664 €

82м21202 €/м2

3 Pokoje , 2 Sypialnie 1 Balkon, 2 Łazienki
Wybudowany 2029
nieumeblowane
1 Od 4
200 m
Informacja o nieruchomości
  • ID:38260
  • Miasto: Aheloy
  • Kompleks:Château Aheloy park
  • Wybudowany:2029
  • Umeblowane:Nieumeblowane
  • Odległość od morza:200 m
  • Widok:Miasto
  • Sezonowość:Całoroczne
  • Piętro:1 Od 4
  • Konstrukcja:Cegła
  • Ogrzewanie:Prąd
  • Ochrona:Tak
  • Winda:Tak
Opis


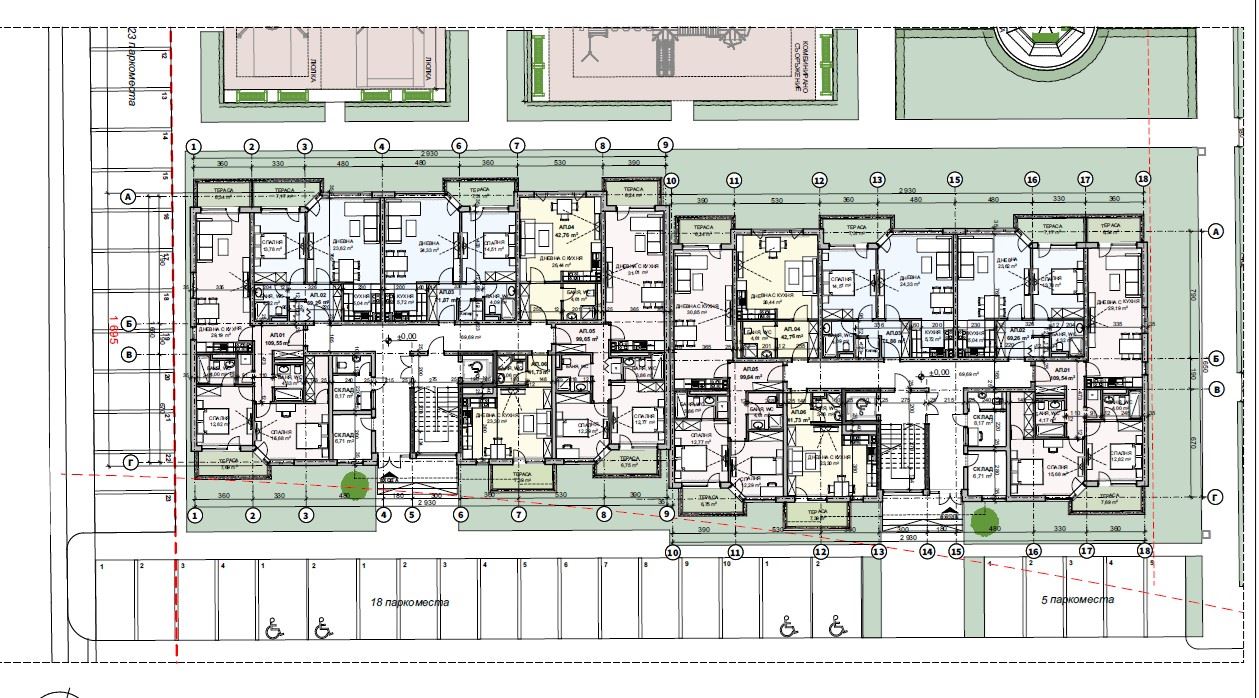
Prezentujemy komfortowe mieszkanie trzypokojowe o powierzchni 82,10 m², położone na pierwszym piętrze nowoczesnego kompleksu w Aheloy, zaledwie 200 metrów od wybrzeża Morza Czarnego i plaży. Nieruchomość jest oferowana w standardzie „tapa” – tynk i wylewka, co pozwala właścicielowi wykończyć ją według własnego gustu. Mieszkanie obejmuje salon z aneksem kuchennym, dwie sypialnie, dwie łazienki z WC, schowek i taras, oferując wygodny i funkcjonalny układ dla rodzin lub inwestycji.

Kompleks składa się z trzech budynków po dwa segmenty, oferując łącznie 156 mieszkań, z których wiele ma panoramiczny widok na morze. Projekt jest idealny dla rodzin z dziećmi, osób poszukujących spokoju i komfortu oraz inwestorów szukających atrakcyjnej rentowności. Mieszkania obejmują studia, mieszkania jedno- i dwupokojowe, łącząc niski poziom piętra ze stylową budową i nowoczesnymi udogodnieniami.

Mieszkańcy i goście mogą korzystać z szerokiej gamy udogodnień, zapewniających aktywny i komfortowy pobyt. Do dyspozycji są cztery baseny odkryte z leżakami i parasolami, wielofunkcyjne boiska do tenisa, siatkówki i piłki nożnej, siłownia na świeżym powietrzu, tenis stołowy, strefy grilla i relaksu. Dzieci mogą bawić się w strefie dla dzieci i basenie dla dzieci, a właściciele korzystać z prywatnego darmowego parkingu.

W nowym projekcie przewidziano dwa dodatkowe baseny, cztery stacje ładowania pojazdów elektrycznych, 158 podziemnych miejsc parkingowych, plac zabaw, altany i zielone strefy relaksu, co sprawia, że kompleks jest niezwykle wygodny i funkcjonalny.

Lokalizacja jest strategiczna – zaledwie 5 minut spacerem od centrum Aheloy, z przytulnymi restauracjami, kawiarniami i sklepami, a także dużymi sieciami handlowymi, takimi jak Lidl, Technomarket, Pepco i Masterhouse. W pobliżu znajdują się popularne kurorty nadmorskie: Ravda, Sunny Beach, Nessebar, Pomorie i Burgas, zapewniające łatwy dostęp do rozrywki, usług i transportu.

To mieszkanie jest doskonałą okazją inwestycyjną lub idealnym miejscem do własnego użytku, łącząc nowoczesny design, funkcjonalny układ i niesamowitą bliskość morza i infrastruktury Aheloy.

Oficjalny plan płatności:

  • 3.000 € – zaliczka przy podpisaniu umowy zaliczkowej
  • 1 rata – 30% przy podpisaniu umowy przedwstępnej, w ciągu 10 dni od uzyskania pozwolenia na budowę
  • 2 rata – 20% po osiągnięciu stropu piętra, na którym znajduje się mieszkanie
  • 3 rata – 30% po otrzymaniu Akt 14
  • 4 rata – 10% po otrzymaniu Akt 15
  • 5 rata – 10% po otrzymaniu Akt 16

Opłata eksploatacyjna – 600 € rocznie, w tym jedno podziemne miejsce parkingowe na mieszkanie




Lokalizacja na mapie