Przestronne dwupokojowe mieszkanie z ogródkiem w nowym kompleksie – idealne do całorocznego zamieszkania

 Słoneczny Brzeg, Rio 2

98 500 €

104м2950 €/м2

2 Pokoje , 1 Sypialnia 1 Balkon, 1 Łazienka
Wybudowany 2026
nieumeblowane
0 Od 3
1 km
Informacja o nieruchomości
  • ID:38421
  • Miasto: Słoneczny Brzeg
  • Kompleks:Rio 2
  • Wybudowany:2026
  • Umeblowane:Nieumeblowane
  • Odległość od morza:1 km
  • Widok:Miasto
  • Sezonowość:Całoroczne
  • Piętro:0 Od 3
  • Konstrukcja:Cegła
  • Ogrzewanie:Prąd
  • Ochrona:Nie
  • Winda:Tak
Opis

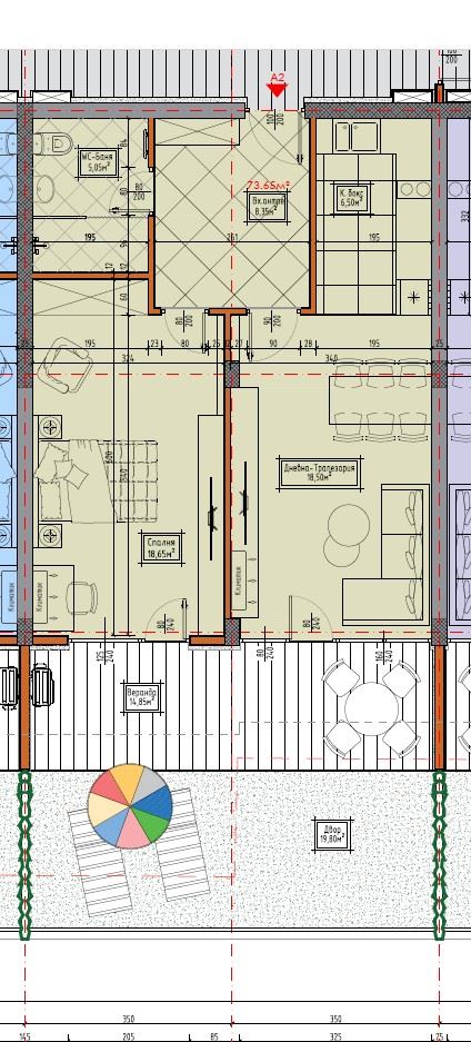
Prezentujemy dwupokojowe mieszkanie o powierzchni całkowitej 103,66 m² z ogródkiem 19,80 m², położone w nowoczesnym kompleksie w budowie, zaprojektowanym z myślą o całorocznym zamieszkaniu i komfortowym użytkowaniu wakacyjnym. Nieruchomość oferuje wszystkie zalety współczesnego budownictwa i funkcjonalnego rozkładu, połączone z udogodnieniami i terenami zielonymi dla pełnowartościowego życia nad morzem.

Mieszkanie jest sprzedawane w stanie deweloperskim, gotowe do wykończenia zgodnie z indywidualnymi preferencjami właściciela. Ściany, podłogi i sufity są tynkowane i wyrównane, drzwi wejściowe, okna i drzwi balkonowe zamontowane, a wszystkie instalacje elektryczne, wodno-kanalizacyjne w pełni poprowadzone. Balkony i tarasy są gotowe, a części wspólne kompleksu w pełni funkcjonalne, w tym winda dla wygody mieszkańców.

Kompleks znajduje się w doskonałej lokalizacji – nowy sklep LIDL jest zaledwie 800 metrów, a do morza można dojść pieszo wygodną ścieżką rowerową, samochodem zajmuje to tylko dwie minuty. Wszystkie mieszkania mają widok na morze, a każde posiada pomieszczenie gospodarcze w piwnicy, wliczone w cenę mieszkania.

Kompleks posiada Akt 14, przewidywane ukończenie – lato 2026, i oferuje wszystkie nowoczesne udogodnieniaogrodzony teren, basen i strefę do grillowania, tworząc przyjemne i bezpieczne otoczenie dla mieszkańców.

Elastyczne warunki finansowe – wymagana płatność początkowa 50% (w tym depozyt), reszta kwoty spłacana jest zgodnie z indywidualnym harmonogramem do ukończenia budowy, co sprawia, że zakup jest dostępny i wygodny, a inwestor może spokojnie planować budżet.

To dwupokojowe mieszkanie jest doskonałym wyborem dla osób szukających nowoczesnego domu z widokiem na morze, funkcjonalnego układu i potencjału inwestycyjnego, połączonego z udogodnieniami, bezpieczeństwem i bliskością plaży oraz infrastruktury lokalnej.

Lokalizacja na mapie