Dom z charakterem i perspektywą – mieszkanie z dwiema sypialniami w nowoczesnym budynku w Meden Rudnik, strefa B
Меден рудник - зона Б99 500 €
97м21026 €/м2
nieumeblowane
- ID:38872
- Miasto: Burgas
- Wybudowany:2029
- Umeblowane:Nieumeblowane
- Odległość od morza:3 km
- Widok:Miasto
- Sezonowość:Całoroczne
- Piętro:5 Od 6
- Konstrukcja:Cegła
- Ogrzewanie:Prąd
- Ochrona:Nie
- Winda:Tak
W najspokojniejszej i najbardziej preferowanej części dzielnicy Meden Rudnik, strefa B w Burgas, planowana jest budowa budynku mieszkalnego nowej generacji, który łączy nowoczesną architekturę, funkcjonalność i wysoką jakość wykonania. Zewnętrzny wygląd budynku wyróżnia się nowoczesną i stylową fasadą, natomiast koncepcja wnętrza skupia się na stworzeniu przytulnego, cichego i komfortowego środowiska życia.
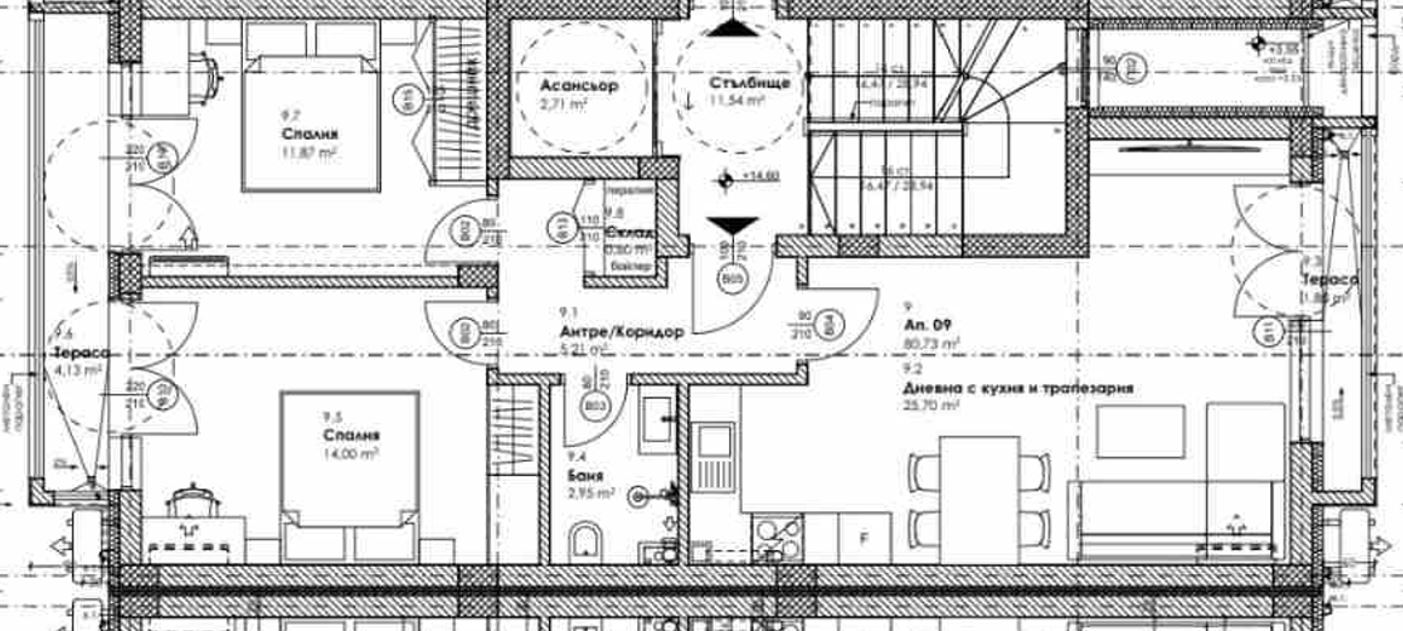
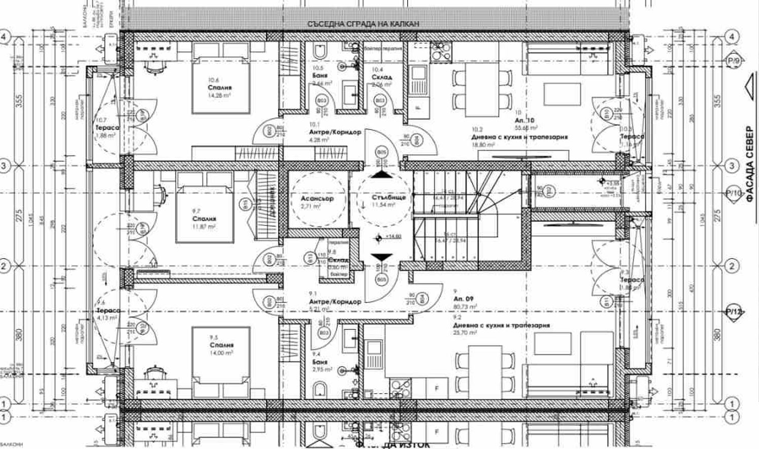
Prezentujemy możliwość zakupu przestronnego mieszkania z dwiema sypialniami i dwiema ekspozycjami, o łącznej powierzchni 97 m², położonego na piątym piętrze z sześciu. Mieszkanie zostało zaprojektowane z dbałością o szczegóły i funkcjonalność, oferując doskonały układ: przedpokój, jasny salon z aneksem kuchennym, dwie oddzielne sypialnie, łazienkę z toaletą, dwie tarasy oraz osobne pomieszczenie gospodarcze. Układ zapewnia maksymalny komfort i wygodę codziennego życia.
Budynek wyposażony jest w windę i oferuje miejsca parkingowe – naziemne i podziemne, a także dwa garaże dostępne dodatkowo w cenie od 10 000 do 45 000 euro.
Projekt realizowany jest w standardzie wysokiej klasy budownictwa, z naciskiem na jakość, trwałość i nowoczesny design. Lokalizacja została doskonale dobrana – w pobliżu znajdują się sklepy, przedszkola i szkoły, co zapewnia wygodę życia rodzinnego i spokój.
Ta nieruchomość stanowi idealne połączenie nowoczesnej architektury, funkcjonalnego projektu i strategicznej lokalizacji, co czyni ją doskonałą zarówno do zamieszkania, jak i jako inwestycję długoterminową.