Ekskluzywny apartament dwupoziomowy z 2 sypialniami i panoramicznym tarasem w nowym budynku w dzielnicy Slaveykov, Burgas – przestrzeń, luksus i prestiż

 Славейков, Ona Homes

377 160 €

314м21200 €/м2

3 Pokoje , 2 Sypialnie 1 Balkon, 2 Łazienki
Wybudowany 2029
nieumeblowane
8 Od 9
3 km
Informacja o nieruchomości
  • ID:38849
  • Miasto: Burgas
  • Kompleks:Ona Homes
  • Wybudowany:2029
  • Umeblowane:Nieumeblowane
  • Odległość od morza:3 km
  • Widok:Miasto
  • Sezonowość:Całoroczne
  • Piętro:8 Od 9
  • Konstrukcja:Cegła
  • Ogrzewanie:Prąd
  • Ochrona:Nie
  • Winda:Tak
Opis


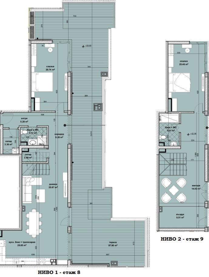
Prezentujemy wyjątkowy apartament dwupoziomowy z 2 sypialniami, położony na ósmym i dziewiątym piętrze nowego nowoczesnego budynku w dzielnicy Slaveykov. Nieruchomość imponuje powierzchnią 314,30 m², łącząc przestrzeń, funkcjonalność oraz poczucie luksusowego miejskiego życia.

Pierwszy poziom obejmuje przedpokój, sypialnię, łazienkę z toaletą, pomieszczenie gospodarcze oraz przestronny salon z aneksem kuchennym, z którego prowadzi wewnętrzna klatka schodowa na drugi poziom. Na tym poziomie znajduje się również imponujący taras o powierzchni 97,90 m², oferujący wyjątkową przestrzeń do wypoczynku, spotkań oraz panoramiczne widoki. Apartament ma ekspozycję wschodnią.

Drugi poziom został zaprojektowany jako bardziej prywatna strefa mieszkalna i obejmuje otwartą antresolę, drugą sypialnię oraz łazienkę z toaletą. Taka koncepcja architektoniczna wyraźnie oddziela strefę dzienną od nocnej, zapewniając maksymalny komfort.

Nieruchomość oferowana jest w stanie deweloperskim (BDS), co umożliwia indywidualne wykończenie.

Budynek składa się z dziewięciu kondygnacji nadziemnych. Na parterze znajdują się lokale handlowe, a na pozostałych piętrach mieszkania z 1 sypialnią, mieszkania z 2 sypialniami oraz ekskluzywne apartamenty dwupoziomowe na ósmym i dziewiątym piętrze. Dostępne są również garaże i miejsca parkingowe na poziomach podziemnych – minus pierwszym i minus drugim.

Lokalizacja jest bardzo atrakcyjna – w pobliżu znajdują się Kaufland, Lidl i Billa oraz Mall Galleria Burgas. Okolica oferuje szkoły, przedszkola, przychodnię i wiele usług.

Rozpoczęcie budowy planowane jest na czerwiec 2026 roku, a czas realizacji wynosi 36 miesięcy. To wyjątkowa okazja inwestycyjna w nieruchomość wysokiej klasy. Ten apartament dwupoziomowy jest rzadką ofertą – łączy przestrzeń, swobodę architektoniczną i prestiżową lokalizację.

Brak opłaty eksploatacyjnej.

Lokalizacja na mapie