Nowy projekt! Przestronne mieszkanie z jedną sypialnią z ekspozycją zachodnią w sercu Burgas

 Братя Миладинови, Terex Residence

123 708 €

71м21750 €/м2

2 Pokoje , 1 Sypialnia 1 Balkon, 1 Łazienka
Wybudowany 2029
nieumeblowane
2 Od 16
3 km
Informacja o nieruchomości
  • ID:38662
  • Miasto: Burgas
  • Kompleks:Terex Residence
  • Wybudowany:2029
  • Umeblowane:Nieumeblowane
  • Odległość od morza:3 km
  • Widok:Miasto
  • Sezonowość:Całoroczne
  • Piętro:2 Od 16
  • Konstrukcja:Cegła
  • Ogrzewanie:Prąd
  • Ochrona:Nie
  • Winda:Tak
Opis


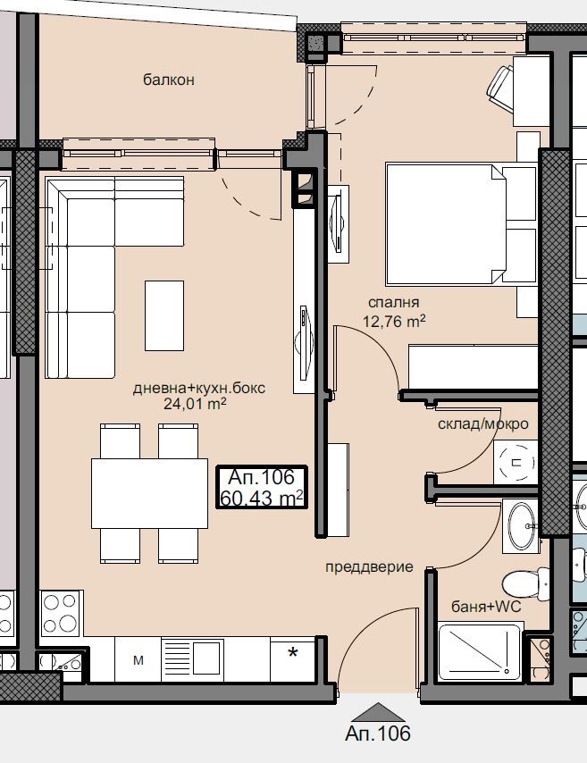
Oferujemy na sprzedaż mieszkanie z jedną sypialnią o powierzchni 70,69 m², położone na pierwszym piętrze nad parterem w nowym, nowoczesnym budynku w jednej z najbardziej pożądanych dzielnic Burgas. Nieruchomość cechuje się bardzo praktycznym i funkcjonalnym układem, zaprojektowanym zarówno do komfortowego mieszkania, jak i jako inwestycja.

Mieszkanie składa się z salonu z aneksem kuchennym, przytulnej sypialni, łazienki z WC, pomieszczenia gospodarczego/pralni oraz korytarza. Dodatkowym atutem jest taras dostępny z obu pomieszczeń, zapewniający więcej światła i przestrzeń na relaks na świeżym powietrzu. Mieszkanie jest oferowane „według standardu BDS, w stanie deweloperskim” (bez mebli), co pozwala właścicielowi wykończyć wnętrze według własnego gustu.

Dla wygody mieszkańców na parterze przewidziano sklep spożywczy, aptekę i sklep ogólnospożywczy, co znacznie ułatwia codzienne życie. Istnieje również możliwość zakupu miejsca parkingowego lub garażu, zapewniających dodatkowy komfort dla właścicieli samochodów.

Budynek jest zaprojektowany z naciskiem na nowoczesną estetykę, efektywność energetyczną i komfort, wyposażony w wentylowaną elewację, izolację akustyczną, potrójne szyby, luksusowe windy oraz zasilanie awaryjne części wspólnych, co gwarantuje niezawodność i bezpieczeństwo. Kontrolowany dostęp i monitoring 24/7 zapewniają spokój i bezpieczeństwo dla mieszkańców.

Lokalizacja mieszkania jest strategiczna i bardzo wygodna, w pobliżu Parku Slavyakov, Galeria Mall i głównych bulwarów miasta, zapewniając szybki dostęp do sklepów, restauracji, transportu i wszystkich udogodnień miejskich.

Ta nieruchomość jest doskonałym wyborem dla osób poszukujących połączenia wygody, funkcjonalności i nowoczesnego stylu, oferując komfortowe życie i bezpieczną inwestycję w jednej z najbardziej atrakcyjnych dzielnic Burgas.

Lokalizacja na mapie