Panoramiczne mieszkanie dwupokojowe na ostatnim piętrze, blisko plaży w Sarafowie – bez opłaty eksploatacyjnej

 Сарафово, Skarabey Puzzle

92 032 €

74м21250 €/м2

2 Pokoje , 1 Sypialnia 1 Balkon, 1 Łazienka
Wybudowany 2027
nieumeblowane
5 Od 5
400 m
Informacja o nieruchomości
  • ID:37780
  • Miasto: Burgas
  • Kompleks:Skarabey Puzzle
  • Wybudowany:2027
  • Umeblowane:Nieumeblowane
  • Odległość od morza:400 m
  • Widok:Miasto
  • Sezonowość:Całoroczne
  • Piętro:5 Od 5
  • Konstrukcja:Cegła
  • Ogrzewanie:Prąd
  • Ochrona:Nie
  • Winda:Tak
Opis


Prezentujemy dwupokojowe mieszkanie w nowo budowanym budynku mieszkalnym w jednej z najspokojniejszych i najbardziej cenionych części Burgas – w dzielnicy Sarafowo. Lokalizacja łączy ciszę i wygodę z doskonałą komunikacją – zaledwie kilka minut spacerem od plaży, z dogodnym dostępem do lotniska i centrum miasta. Okolica oferuje dobrze rozwiniętą infrastrukturę i wszystkie codzienne udogodnienia w zasięgu ręki.

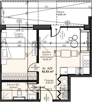
Nieruchomość ma powierzchnię całkowitą 73,63 m², znajduje się na 5. (ostatnim) piętrze, z ekspozycją zachodnią – przytulne popołudniowe światło i piękne widoki na zachód słońca. Układ mieszkania obejmuje jasny salon z aneksem kuchennym, jedną oddzielną sypialnię, łazienkę z WC oraz wygodny balkon. Wysokie sufity i duże przeszklenia tworzą poczucie przestronności i komfortu, a ostatnie piętro zapewnia dodatkową prywatność. Budynek wyposażony jest w windę.

Mieszkanie sprzedawane jest w standardzie deweloperskim (BDS) – ściany przygotowane do wykończenia, podłogi wylewka – co daje możliwość aranżacji wnętrza według własnego gustu i stylu. Projekt realizowany jest w oparciu o nowoczesne technologie i wysokiej jakości materiały, z naciskiem na efektywność energetyczną i długoterminową wartość inwestycji. Brak opłaty eksploatacyjnej – rzadko spotykana zaleta w tej okolicy. Budynek ma 5 pięter i funkcjonalnie rozplanowane kawalerki, mieszkania jedno-, dwu- i trzypokojowe. Kompleks oferuje dwa oddzielne wejścia z kontrolowanym dostępem, windy, miejsca parkingowe na zewnątrz oraz garaże podziemne. Istnieje możliwość zakupu garażu i/lub miejsca parkingowego.

Lokalizacja jest idealna zarówno do zamieszkania na stałe, jak i do celów wakacyjnych lub wynajmu – bliskość morza, szybki dostęp do kluczowych punktów miasta i przyjemne, zadbane otoczenie.

  • Rozpoczęcie budowy: maj 2025
  • Planowane zakończenie (Act 16): czerwiec 2027

Skontaktuj się z nami w celu uzyskania dodatkowych informacji, planów nieruchomości i konsultacji na miejscu. To świetna okazja, aby zapewnić sobie dom nad morzem w prestiżowej części Burgas – ze spokojem, którego szukasz, i potencjałem, na jaki zasługujesz.

Lokalizacja na mapie